近鉄南大阪線「針中野」駅から徒歩5分。東住吉区の中でも落ち着いた住環境が魅力の鷹合エリアに、南向きの光が心地よく入る2LDK・50㎡の賃貸物件が登場しました。オートロックや宅配ボックスなど、日々の暮らしを支える設備が整い、スーパーや学校、郵便局が徒歩圏内に揃う利便性も大きなポイント。二人暮らしやファミリー、在宅ワークにも対応しやすい間取りで、東住吉区で住まいを探す方に“暮らしのイメージが自然と広がる”一室です。
モアナ鷹合の物件詳細
物件概要
| 所在地 | 大阪府大阪市東住吉区鷹合1丁目 |
交通 | 近鉄南大阪線「針中野」駅 徒歩5分 地下鉄谷町線「駒川中野」駅 徒歩10分 阪和線「鶴ケ丘」駅 徒歩15分 |
| 間取り / 面積 | 2LDK/壁芯50.00㎡ |
| 築年月 | 1987年3月 |
| 種別 / 構造 | マンション / 鉄筋コンクリート造 |
周辺環境
- 万代 矢田店 約900m
- コノミヤ 南田辺店 約500m
- イズミヤ 南田辺店 約550m
- ローソン 東住吉南田辺店 約950m
- 大阪府東住吉警察署 約650m
駒川グリーンマナーの室内詳細
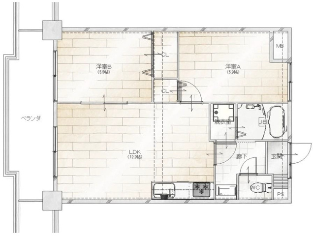
間取り

エントランス

落ち着いた色味のタイルと黒天井が印象的なエントランスは、住まいに帰ってきた瞬間の安心感を大切にしたデザイン。ガラス扉の奥まで自然光が届き、明るさを感じられるつくりになっています。右側には植栽が整えられた小さなスペースがあり、外観にやわらかさを添えているのも特徴。集合ポストとインターホンが一か所にまとめられており、家族で暮らすうえで欠かせない“使いやすさ”がしっかり確保されています。毎日の出入りがスムーズで、ファミリーにも心地よいエントランスです。
リビング

木目調のフローリングと落ち着いた色合いの壁が、家族の暮らしにやさしく馴染む室内。キッチンは収納付きで、日々の料理にも使いやすい設計。窓から差し込む自然光が空間を明るく照らし、清潔感のある住まいを印象づけます。扉や壁の色味も統一感があり、インテリアの配置もしやすいのが魅力。賃貸マンションで探される「明るさ」「使いやすさ」「安心感」が、この一室にはしっかりと詰まっています。
キッチン

広々としたキッチンは、家族の「食」を支える頼もしい存在。調理スペースにゆとりがあるから、親子で並んで料理したり、週末に作り置きしたりと、暮らしの幅がぐっと広がります。2口コンロと大きめシンクの配置も絶妙で、動線がスムーズ。収納もたっぷりで、調理器具や食材の整理もストレスフリー。ファミリー層に人気の「広めキッチン」「家事ラク動線」「収納力」といった検索ワードにもマッチする、生活に寄り添った設備です。
洋室

収納力に優れた洋室は、ファミリー層にとって頼れる味方。4枚扉のクローゼットと引き戸タイプの収納が並び、季節物や子どもの荷物もすっきり片付きます。床は明るめの木目で、家具の色を選ばずコーディネートしやすいのも嬉しいポイント。窓からの自然光が差し込むことで、日中は照明なしでも快適に過ごせる明るさ。「収納充実」「明るい室内」「家具配置しやすい」といった検索ワードに強く、暮らしやすさを実感できる一室です。
寝室

グレーのアクセントクロスが印象的なこの洋室は、シンプルながらも洗練された雰囲気を演出。窓には防犯性の高い格子付きで、安心感もプラス。天井のペンダントライトが空間に柔らかな陰影を与え、インテリア次第でモダンにもナチュラルにも仕上がります。壁面にはハンガーバーも設置されており、収納やディスプレイとして活用可能。「大阪市 賃貸」「1LDK」「防犯性の高い部屋」などの検索ワードにもマッチする、都市型ライフにぴったりな一室です。
バルコニー

バルコニー全体が“余裕ある暮らし”を物語るような、スタイリッシュな一枚。直線的な手すりと広めのスペースが生み出す抜け感は、まるで都会のスカイラウンジ。洗濯物を干すだけの場所じゃなく、夜風を感じながらチルできる大人のアウトドアリビングとしても活躍します。視界が開けているから、朝のコーヒーも夜の一杯も気分が上がる。検索ワードに強い「開放感」「眺望」「ゆとりある暮らし」をしっかり押さえた、家族の毎日をワンランク上げるバルコニーです。
駒川グリーンマナーのおすすめポイント
駒川グリーンマナーは広々としたキッチンや明るい洋室、開放感あるバルコニーなど、細部まで丁寧に整えられた空間は、リノベーションならではの洗練された雰囲気をまとっています。機能性を高めた2口コンロや清潔感ある水まわり、使い勝手の良い収納など、暮らしをアップデートする工夫が随所に感じられるのも魅力。「リノベーション」「収納」「家事ラク」といった検索ワードにも強く、家族の毎日をスタイリッシュに彩る賃貸物件として注目したい一室です。
こんな条件でお探しの方におすすめ
住みたい条件
その他の条件
お部屋探しでお困りの方へ
アクトラス不動産昭和町店は、大阪市阿倍野区・天王寺区・東住吉区を中心に、大阪市内の最新賃貸物件情報(マンション・アパート・戸建て)をスピーディーにお届けします。
お客様に「依頼してよかった」と実感いただけるよう、安心・納得の物件提案と万全のサポート体制でお部屋探しをお手伝いします。
ホームページ未掲載の物件も、家主様の都合でネット掲載が難しいエリアの賃貸情報を含め、幅広く非公開物件をご紹介しますのでご安心ください。
「賃貸・売買で契約の事がわからない」「遠方で来店できない」「初期費用を抑えたい」など、お気軽にご相談ください。
賃貸物件探しでよくあるご質問
- 物件の内覧予約はどのタイミングで申し込めばいいですか?
-
ご希望日の1~2週間前までにお問い合わせください。人気物件は特に土日祝が埋まりやすいため、早めのご連絡をおすすめします。
枠が空いていれば当日や前日のご予約も受けております。 - 入居時にかかる初期費用の内訳を教えてください
-
敷金・礼金・前家賃・火災保険料・仲介手数料などが主な項目です。物件によっては保証会社利用料や鍵交換費用、前家賃の日割り計算分も必要になります。
広さや地域によって初期費用の相場も変わってきますので、詳細はスタッフまでお問い合わせください。 - 希望条件の優先順位はどう決めればいいですか?
-
まず絶対譲れない条件(家賃上限・エリア・間取り)を決め、次に妥協できる条件(日当たり・設備・築年数)を整理します。順序を明確にすることで効率よく物件を絞り込めます。
- 条件はどうやって絞り込んだらいいですか?
-
普段のライフスタイル・無理なく払えるお家賃・間取・設備・交通の中から優先順位を付けます。当社に条件をお伝えいただければ、お客様のライフスタイルに合ったお部屋をご紹介させていただきます。
- 賃貸物件の内見で必ず確認すべき基本ポイントは?
-
内見時は「日当たり」「通風」「インテリアの配置のしやすさ」「収納量」「駅徒歩(〇分以内か)」「周辺環境(スーパー・コンビニの有無)」をチェックしましょう。これらを押さえると、大阪市の賃貸で失敗しない物件選びができます。
